2 months ago • Public • Project
• Forwardable
Bookarcho Official
Two Bloks
The atmosphere grows more mysterious as one looks at the slightly opaque glass door, where only faint contours can be seen beyond. A mysterious blue and purple light seeps out. What awaits at the end of the tunnel remains for a future tenant to decide.
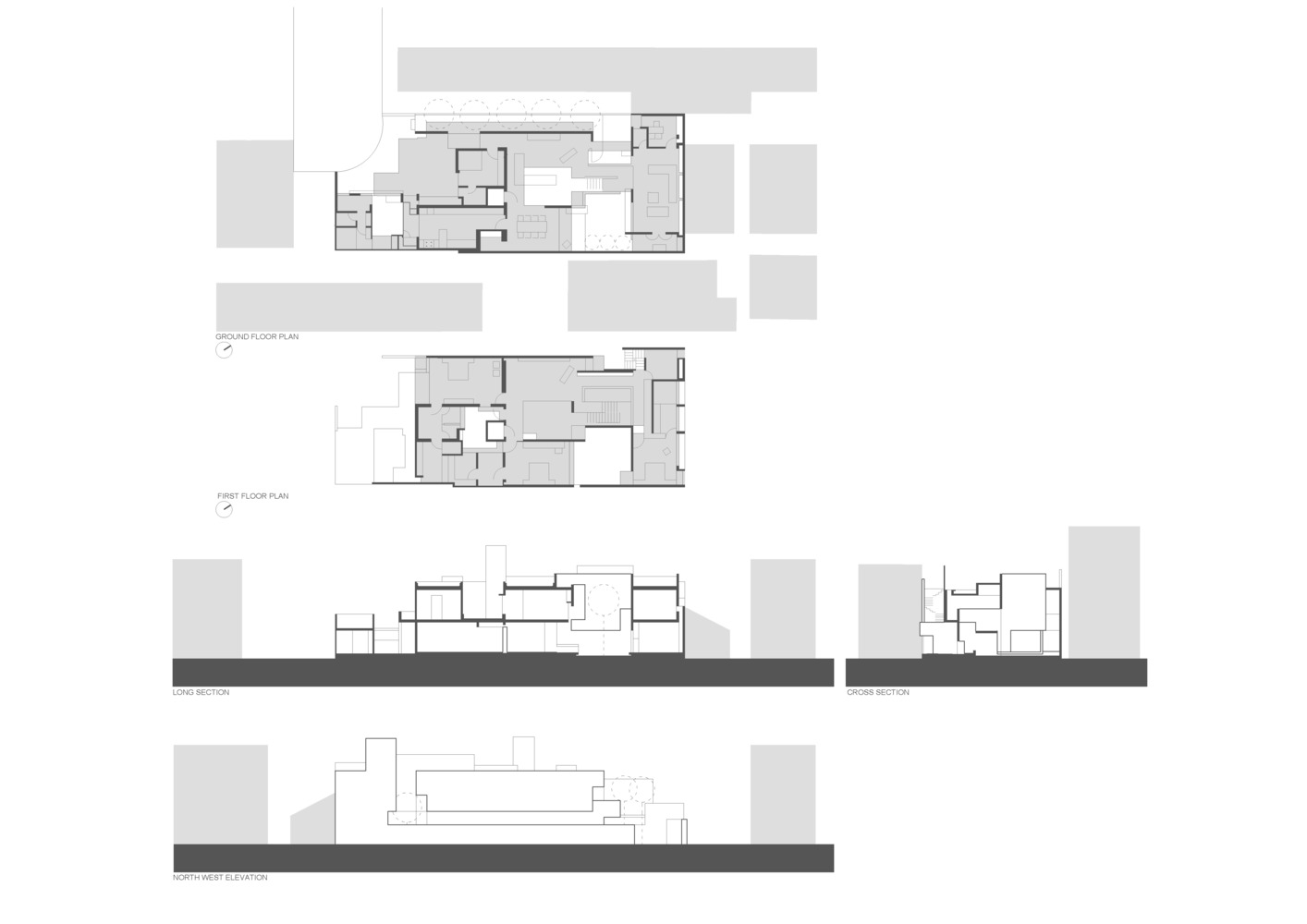
Project Details
Architects
TWO STONES
Location
THIRUVALLA
Category
RESIDENTIAL
Type
CONSTRUCTION
Area
5400
Budget
3455000
Client
ANN EEDA
Photography
TOMCY BENNY
#modern
#residential
#contemporary
Check out attachements!
0rIyGDctvxg6CPtpCDEwHA6lLqYzYPmYA1DuNB5E.jpg
U2Td1UrSNdS6Ac8ZOLwGcaRE7V2sQfyMfqHnBRxM.jpg
UNIA6m1saBQZPkwBFuGUWTt9lGtjoYdLgPffflXQ.jpg
Please Login to comment.